Urban Architecture: How 2026 Building Codes Will Require Every Azotea La Paz Average Height Of A Two Story House Understanding And
While the pause on further residential updates through 2031 introduces constraints, the 2026 standards will hold significant weight for a long time. Most are national model codes adopted by reference and amended at the state level California's building codes are evolving to address modern challenges in safety, sustainability, and accessibility
ADK-AutoCAD Architecture 2026 Download + Activator - Civil MDC
The 2026 update introduces significant changes that will affect architects, builders, contractors, and property owners across the state State building code the washington state building code is comprised of several different codes Understanding these new codes is essential to ensure compliance, avoid costly delays, and contribute to safer, greener communities.this post.
Effective january 1, 2026, the new 2025 california building standards code (title 24) will usher in sweeping changes aimed at electrification, wildfire resilience, seismic safety, and sustainable construction practices.
Every three years, california updates its building code to reflect new priorities in safety, energy, sustainability, and livability In january 2026, the next edition of the california building standards code (title 24) will go into effect, and it's shaping up to bring major implications for residential projects — from new homes to adus and remodels.at only think green, we help clients. California's 2026 building code brings major ev, energy, fire, and seismic changes Discover key updates and how to keep your projects compliant.
We're constantly reminded of how building codes and zoning laws shape the urban landscape in the u.s Discover the transformative architectural events of 2026, shaping sustainable futures and fostering global design dialogue. The 2025 california building standards code (cal Code regs., title 24) will be published july 1, 2025, with an effective date of january 1, 2026
Summaries of the code changes in this edition and the supplements are available under the resources tab of the cbsc website.
Architects, planners, and the building community are key players in the decarbonization effort There is a great need for change in building design to positively impact climate change Aia participates in the following (including but not limited to) codes and standards development committees that address decarbonization needs: It requires each jurisdiction in maryland to use the same edition of the same building codes that are the international building code (ibc), the international residential code (irc), and the international energy conservation code (iecc)
The state has modified the ibc and the irc to coincide with other maryland laws. Policy intent notices (pin), code application notices (can), title 24 california building standards codes, hcai 3 clinics, and other codes and regulations. Explore top linkedin content from members on a range of professional topics. Welcome to revit learning browse the navigation panel on the left or start with the essentials below.
Typepad domains is a reseller for logicboxes
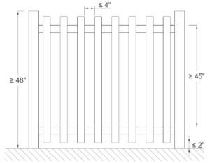
All domains registered with typepad domains will be transferred to reseller club, another logicboxes partner, on october 27 If this applies to you, you will receive emails from reseller club with more information.u2028 you do not need to transfer your domain away from logicboxes because you will be able to continue managing it through reseller. The beatles performing don't let me down.anthology collection cd & vinyl box sets out now That certain document known as the la paz county building code ordinance no
The national building regulations and building standards act This is the original legislation published in 1977 that governs all building and construction work in south africa Various updates have been made since this time, and these are also available for download Summary a building code provides rules and standards for the design, construction, alteration, materials, maintenance, and performance of buildings
The main purpose of building codes is to protect public health, safety, and general welfare in the construction and occupancy of buildings
Building codes are adopted and enforced by state, local, tribal, and territorial (sltt) entities Openstreetmap is a map of the world, created by people like you and free to use under an open license. In developing designs, architects must follow state and local building codes, zoning laws, fire regulations, and other ordinances, such as those requiring reasonable access for people with disabilities
